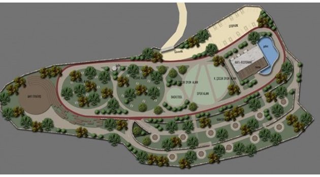
Sakarya Büyükşehir Belediye Başkanı Zeki Toçoğlu tarafından Pamukova’ya müjdesi verilen Esentepe Sosyal Tesisi ve Park Projesi 15 Temmuz Cuma günü ihaleye çıkıyor. Kısa süre önce, netleşen projeye ilişkin açıklamalarda bulunan Başkan Toçoğlu, yeni yaşam alanını 30 dönümlük bir alana kazandıracaklarını belirtmiş, proje görsellerini kamuoyu ile paylaşmıştı. Toçoğlu 15 Temmuz Cuma günü yapılacak ihalenin ardından ise yeni yatırım üzerindeki inşaat çalışmalarının başlatılacağını duyurmuştu.
30 Dönümlük Yaşam Alanı
Konu ile ilgili olarak açıklamalarda bulunan Büyükşehir Belediyesi Çevre Koruma ve Kontrol Dairesi Başkanı Türker Vardar, “Kısa süre önce Büyükşehir Belediye Başkanımız Sayın Zeki Toçoğlu şehrimizin güney ucu Pamukova’ya yeni bir yaşam alanı sözü vermişlerdi. Biz de bu doğrultuda çalışmaları başlattık. Proje hazırlıkları geçtiğimiz ay nihayete erdi. Yine Sayın Başkanımız projenin son halini kamuoyu ile paylaştılar. Mekece ve Bağlarbaşı boğaz manzaraları üzerindeki 30 dönümlük alanda Sosyal Tesisi ve Park Projesini hayata geçireceğiz. Yapım ihalesi 15 Temmuz Cuma günü, saat 11.00’da gerçekleştirilecek. Araştırma Hastanesinin karşısındaki Büyükşehir ek hizmet binası ihale odasında yapılacak ihalenin ardından projede ilk kazmayı yakın bir zamanda vuracağız” diye konuştu.
Cazibe Merkezi
Vardar, “Bu proje 700-800 metre yükseklikte inşa edilecek. Tüm Pamukova’nın ayaklar altında olduğu bir yer düşünün. Aynı zamanda bu mekanda Mekece ve Bağlarbaşı boğaz manzaraları da misafirlerimizin beğenisine sunulacak. Oldukça beğeni kazanacak bir yaşam alanı projelendirdik. Yeni yaşam alanının içerisinde yürüyüş yolları, kafeterya, mesire alanı, kamelya ve diğer sosyal donatılar yer alacak. Sadece Pamukovalıların değil, şehrin dikkatini çekecek bir cazibe merkezini ilçemize kazandıracağımızı düşünüyoruz. Sakaryamızın 16 ilçesine yeni meydanlar, yeni yaşam alanları, parklar, sosyal donatıları yüksek bölgeler kazandırma hedefimize dair de çok önemli bir adım atmış olacağız. Pamukova’ya hayırlı olmasını diliyoruz” ifadelerini kullandı.
Keser’den Hizmet Teşekkürü
Pamukova Belediye Başkanı Cevat Keser ise, “Pamukovamız Büyükşehir Belediyemizin güçlü hizmet elini sürekli ardında, yanı başında hissediyor. İlçemizde altyapı ve içmesuyunda önemli yatırımlar SASKİ eliyle hayata geçirildi. Asfalt konusunda planlamalar yapılıyor, serim işlemleri de yapılmakta. Üst yapı projelerinde de Pamukovamız güzel bir projeyle buluşacak. 30 dönümlük alana içerisinde birçok zenginliğin yer aldığı sosyal tesis inşa edilecek. Bu alanda çalışmalar tamamlandığında her kesimden vatandaşımızla Esentepe’de buluşacağız. Büyükşehir Belediye Başkanımız Zeki Toçoğlu’na hayata geçirilen yatırımlar için Pamukovalı hemşerilerim adına teşekkür ediyorum” dedi.





